Bliźniak, super rozkład i duża działka, Brwinów
mazowieckie, pruszkowski, Brwinów
- DRUKUJ
- UDOSTĘPNIJ
- 1 349 000 zł9 500 zł/m2
- ZAPAMIĘTAJ
- Liczba pokoi:6
- Powierzchnia:142 m2
- Cena: 1 349 000 zł
Opis nieruchomości
Na sprzedaż nowoczesny dom jednorodzinny dwulokalowy (połączony garażami) w spokojnej, zielonej części Brwinowa.
Nieruchomość o powierzchni 142 m2 położona jest na działce 600 m2.
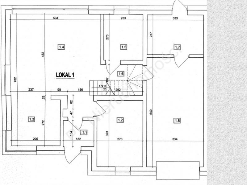
PARTER:
- przestronny salon z jadalnią (24,59 m) z bezpośrednim wyjściem do ogrodu
- otwarta kuchnia (8,12 m), połączona z częścią dzienną
- dodatkowy pokój (10,79 m) idealny na gabinet lub pokój gościnny
- duża łazienka z oknem (6,35 m)
- funkcjonalna kotłownia (7,91 m) z możliwością aranżacji strefy pralni z wejściem zarówno z garażu, jak i z zewnątrz
- garaż jednostanowiskowy (21,85 m) z potencjałem adaptacji dodatkowej przestrzeni nad nim
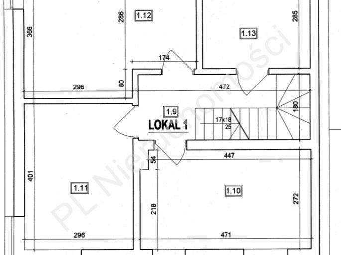
PIĘTRO:
- trzy ustawne sypialnie (12,72 m; 11,89 m; 17,49 m), w tym pokój z wyjściem na balkon nad wejściem
- komfortowa, jasna łazienka (6,79 m)
Dodatkowa przestrzeń:
- docieplony strych idealne miejsce do przechowywania rzeczy sezonowych
- dach pokryty blachoachówką
- okna PCV 3-szybowe
- ogrzewanie podłogowe w całym domu
- szeroka opaska wokół budynku
- ogrodzenie panelowe całej działki
Dom wykonany w solidnej technologii, z ogrzewaniem podłogowym w całym budynku.
Wyposażony w pompę ciepła powietrzną (Auratsu 9 KW) oraz instalację fotowoltaiczną (moc 5KW) , co zapewnia niskie koszty utrzymania.
Działka w pełni zagospodarowana ogrodzenie, podjazd, taras, brama z napędem.
Kupujący nie płaci 2% PCC
Idealna propozycja dla osób szukających komfortowego domu w cichej okolicy z dobrym dojazdem do Warszawy.
Zapraszam do kontaktu
Szczegóły ogłoszenia
| Numer oferty | D-86851-4 |
|---|---|
| Typ oferty | Dom na sprzedaż |
| Cena | 1 349 000 zł (9 500 zł/m2) |
| Rynek | pierwotny |
| Powierzchnia | 142 m2 |
| Pow. działki | 600 m2 |
| Liczba pokoi | 6 |
| Rok budowy | 2026 |
| Materiał budowy | inne |
| Zabezpieczenia | monitoring / ochrona |
| Ogrzewanie | - |
| Media | prąd, woda, szambo |
| Inf. dodatkowe | garaż |
Lokalizacja i okolica
| Województwo | mazowieckie |
|---|---|
| Powiat | pruszkowski |
| Miasto | Brwinów |
| Dzielnica | - |